Solarwohnpark-9




Zurück zu Seite 8      Weiter zu Seite 10


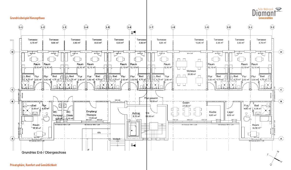
Grundrissbeispiel Konzepthaus

Privatsphäre, Komfort und Gemütlichkeit

Privatsphäre, Komfort und Gemütlichkeit
Die gesamte Planung der Konzepthäuser wurde mit viel Beachtung auf die Bedürfnisse der zukünftigen Bewohner abgestimmt.
Einzelzimmer mit eigenem Bad und Balkon bieten Privatsphäre und ein Wohngefühl der eigenen 4 Wände.
Der eigene Zugang zum Balkon mit südwest Ausrichtung und einem großzügig bemessenen Fenster
 bringt viel Licht und Sonne in das Zimmer. Auch das eigene Bad bietet mit der bodenebenen Dusche viel Platz und Komfort.
In jedem der beiden Konzepthäuser wurde ausreichend Platz für gemeinschaftliche Aktivitäten eingeplant,
so dass die sozialen Kontakte in gemütlicher Atmosphäre gepflegt werden können.
Der Betreiber wird darüber hinaus gesellschaftliche Gruppenaktivitäten aus den unterschiedlichen Bereichen anbieten.
Gymnastikstunden, Tanztees, Bastelstunden, spezielle Therapieangebote sind lediglich Beispiele des vielseitigen Angebots.

In den auf jeder Etage eingebauten Küchen können die Bewohner sich auf Wunsch auch selbst versorgen und
somit ein Gefühl der Selbstbestimmung und Eigenständigkeit behalten.
 

Grundrissbeispiel Konzepthaus

Bei Interesse kontaktieren Sie bitte:

Frau Ursula Arndt

Tel.:
+49 89 54 72 69 06
089 5472 6906

Fax
+49 89 54 72 69 07
089 54726907

E-Mail:
info@ursula-arndt.de

Zurück zu Seite 8      Weiter zu Seite 10



Zur Startseite
Kontakt | Impressum | über mich